021-66771111 021-66770555 021-66775555
产品介绍
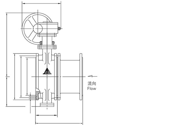
采用三偏心蝶阀,分段轴设计,流通能力大,流阻小,减缓磨损,延长阀门使用寿命。蝶板密封面采用隐藏式设计,避免介质直接冲刷损伤。抗磨短节内设有特殊结构,在全开启状态下保护蝶板密封面免受冲刷。高耐磨的阀座采用活接结构,用户可根据阀门磨损情况,方便更换,以降低用户生产使用成本。阀门操作采用蜗轮传动,减轻蝶阀操作力矩,开关灵活,保护阀门安全运行。根据用户的需要可以提供气动或电动耐磨蝶阀。适用介质范围广更适用于风送、气送粉末颗粒介质。专利号:ZL 2009 20208500.9
产品结构图:
主要技术参数:
外形及连接尺寸:
版权所有@上海良逸阀门有限公司 沪ICP备11004218号
地址:上海市普陀区交通路2515号 免费热线电话:400-876-7500 400-876-8500 400-876-9500